
【大河财立方消息】10月22日,郑州市自然资源和规划局郑东新区分局公告,就山姆会员商店建设项目建筑方案征求意见。
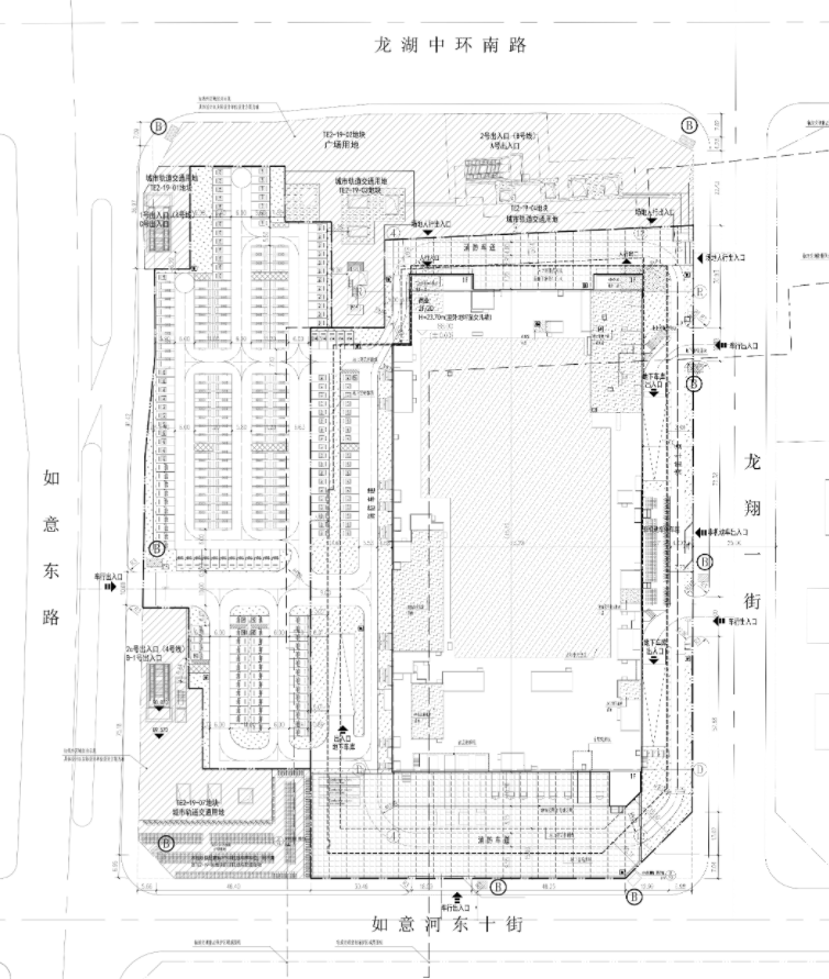
山姆会员商店项目位于如意东路东、如意河东十街北,总占地约44.01亩,由商店和交通服务场站2个块地构成,其中:商店占地约32.26亩,总建筑面积约5.93万平方米(地上建筑面积约2.49万㎡,地下建筑面积约3.44万平方米);地上建筑层数两层,主要功能为卖场、配套用房及卸货区;地下两层主要功能为车库及设备用房。
山姆会员店建筑高度23.7米,绿地率10.05%,机动车停车位724个,预留充电车位102个。
本次征求意见文件涉及总平面图、立面图、剖面图、建筑单体效果图、鸟瞰图等。
责编:陈玉尧 | 审核:李震 | 监审:古筝
