郑州东站东广场地下规划曝光!官方公开征求意见
大河财立方
2025-09-05 16:01:13

【大河财立方消息】9月5日郑州市自然资源和规划局郑东新区分局消息,郑州综合交通枢纽地下交通(东广场)人防工程建筑方案公开征求意见。

郑州综合交通枢纽地下交通(东广场)人防工程 鸟瞰图
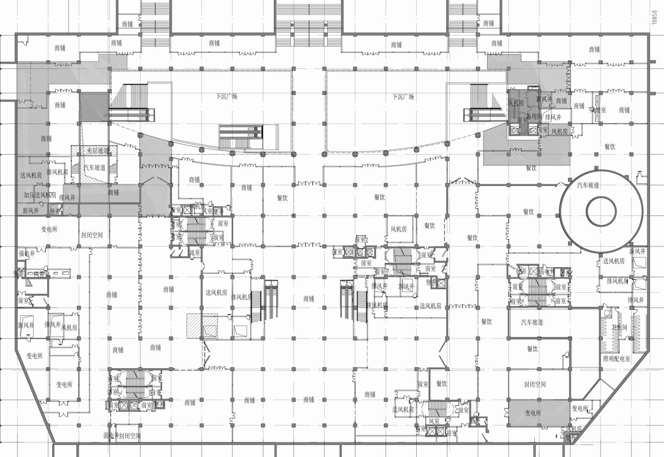
郑州综合交通枢纽地下交通(东广场)人防工程 北区负一层平面图
郑州综合交通枢纽地下交通(东广场)人防工程 南区负一层平面图

今年3月19日,胖东来创始人于东来在社交媒体发文称,胖东来郑州项目基本确定在高铁东站东广场东地下商业广场。

7月25日,于东来在一次直播互动中明确表示,郑州店将于明年五一前正式开业,招聘工作也将同步在明年五一前启动。

郑州东站东广场 图源:百度地图

责编:陈玉尧 | 审核:李震 | 监审:古筝


相关资讯